48 m2 ul. Zagórna po generalnym remoncie

lokalizacja: Białystok, Zagórna

459 000,00 PLN

9 538,65 PLN

Opis nieruchomości

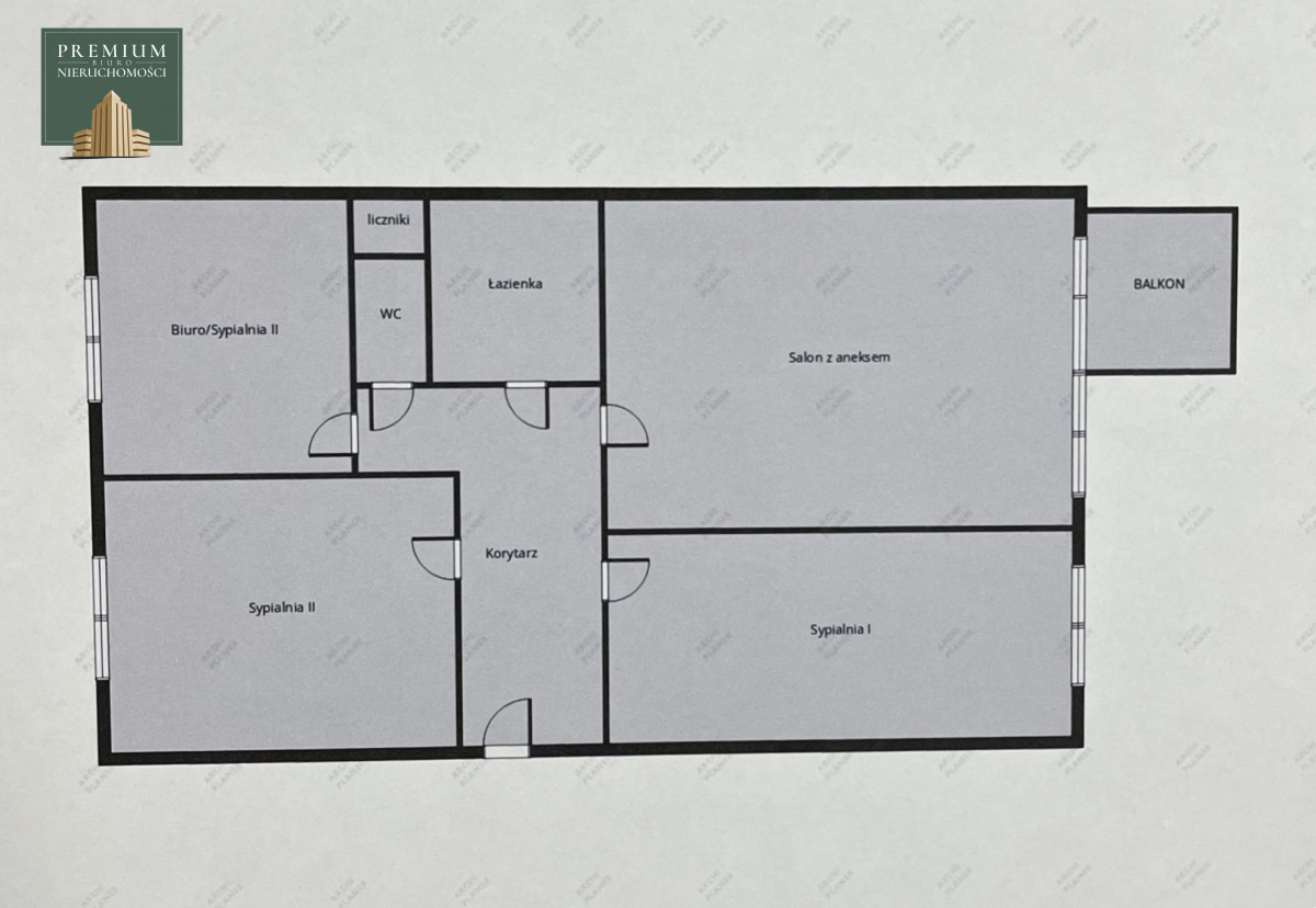
Na sprzedaż 4-pokojowe mieszkanie o powierzchni 48,12 m² przy ul. Zagórnej w Białymstoku na osiedlu Dziesięciny II

Mieszkanie przeszeło kapitalny remont w tym roku wraz z wymianą wszystkich instalacji (elektrycznej,TV,internet i wod-kan). Po remoncie nigdy nie było zamieszkane i czeka na nowego właściciela

Dwustronne mieszkanie z potencjałem dla rodziny znajdujące się na 4 piętrze w zadbanym bloku z lat 80-tych. Lokal oferuje komfortowy układ:



  •  Salon z aneksem kuchennym (cała kuchnia wykonana na wymiar przez stolarza i nowe AGD)

  •  Dwie niezależne sypialnie, które zapewnią prywatność każdemu domownikowi

  •  Biuro lub kolejna, trzecia sypialnia

  •  Odzielna łazienka z dużym prysznicem i pralką

  •  Oddzielne WC

  •  Funkcjonalny przedpokój z dużą szafą wykonaną na wymiar przez stolarza

  •  Balkon - idealny do relaksu z pięknym widokiem (balkon jest zabudowany systemem okiennym z aluminium)




Osiedle Dziesięciny to idealne miejsce dla osób ceniących sobie wygodę i dostęp do pełnej infrastruktury miasta. W zasięgu ręki znajdą Pańśtwo:

Placówki edukacyjne: szkoły i przedszkola.
Centra handlowe: domy handlowe na zakupy.
Kultura i rozrywka: domy kultury, biblioteki, restauracje, kawiarnie i cukiernie.
Tereny zielone: liczne tereny spacerowe.
Doskonała komunikacja miejska to kolejny atut - liczne linie autobusowe zapewniają szybki dojazd do centrum Białegostoku. Dla zmotoryzowanych mieszkańców dostępny jest parking pod blokiem.
Pełna własność z KW daje możliwość zakupu również na kredyt.
Niski czynsz-wspólnota mieszkaniowa.


Zachęcam do kontaktu oraz zapraszam na prezentację mieszkania !

Oferta objęta klauzulą wyłączności !

Rafał Trusiewicz
508 642 625
Biuro pobiera prowizję!

Kontakt do opiekuna:

Premium Nieruchomości

Rafał Trusiewicz
Nieprawidłowy adres E-mail
Mapa

Strona korzysta z plików cookie w celu realizacji usług zgodnie z Polityką prywatności. Możesz określić warunki przechowywania lub dostępu do cookie w Twojej przeglądarce.